加入收藏 | 设为首页 | 会员中心 | 我要投稿 | RSS
北京
上海
天津
重庆
江苏
江西
湖南
湖北
河南
河北
广东
广西
山东
山西
海南
黑龙江
浙江
安徽
福建
四川
贵州
陕西
辽宁
吉林
甘肃
宁夏
青海
西藏
新疆
内蒙
云南
港澳台



供应京津冀地区PC构件[例]
供应全国ALC条板[例]
装配式模具生产与设计[例]
预制构件灌浆套筒等辅材[例]
塔吊吊车租赁[例]
供应京津冀地区PC构件[例]
供应全国ALC条板[例]
装配式模具生产与设计[例]
预制构件灌浆套筒等辅材[例]
塔吊吊车租赁[例]

您当前的位置:首页 > 装配专题 > 装配式工业化装修

江苏省第一个装配式内装示范项目!施工技术大公开

时间:2020-07-01 15:08:24  来源:中国知网、装配式内装研究院

我国目前传统装修已无法满足百姓对美好生活的持续发展的要求,装配化装修技术应用是全面解决当前装修行业面临问题的最有效方法。g8c筑傲网-装配式建筑专业网站平台

装配化装修采用干式工法,将工厂生产的内装部品在现场进行组合安装的装修方式。其特点是标准化设计、工厂化生产、装配化施工、 信息化管理。以主体、管线、内装分离理念为核心,以工厂化部品应用为基础,全面实现施工现场的干作业,从而实现高精度、高效率、高品质g8c筑傲网-装配式建筑专业网站平台

01项目简介g8c筑傲网-装配式建筑专业网站平台

 

 g8c筑傲网-装配式建筑专业网站平台

南京江北新区人才公寓(1 号地块)是江苏省第一个装配化装修的示范项目。项目中 1# ~ 2#、4# ~ 8# 楼为住宅,9# ~ 11#楼为公寓,户内装修全部采用干式工法,管线分离,工厂生产的部品在现场进行组合安装的装修方式g8c筑傲网-装配式建筑专业网站平台

02、装配式装修系统g8c筑傲网-装配式建筑专业网站平台

本项目装配化装修采用基于硅酸钙复合板体系的装配化装修部品,结合项目特色和设计要求进行提炼和总结,从全屋角度将装配化装修系统分为以下几个部分。g8c筑傲网-装配式建筑专业网站平台

 g8c筑傲网-装配式建筑专业网站平台

1、架空地面系统g8c筑傲网-装配式建筑专业网站平台

主要由型钢架空模块、地面调整脚、自饰面硅酸钙复合地板和各类连接部件构成。具有空腔敷设管线、地脚螺栓调平、高强度承载力、低荷载、耐久性隔音效果良好、平整度高、易于回收的特点;集成采暖是架空地面系统的进一步集成,在地面模块结构中增加采暖管和保温隔热材料,形成地暖架空地面模块(见下图)。适用于以水暖为热源的干式地暖建筑中。面层原材料绿色环保、规避干湿变形、企口拼接便捷、饰面效果丰富。g8c筑傲网-装配式建筑专业网站平台
g8c筑傲网-装配式建筑专业网站平台
g8c筑傲网-装配式建筑专业网站平台

 

2、轻质隔墙系统g8c筑傲网-装配式建筑专业网站平台

在外围护墙体不改变的情况下,室内隔墙采用由轻钢龙骨支撑,隔墙内填充隔音岩棉,干式工法现场组合安装硅酸钙复合墙板的集成化墙面。具有灵活分割空间、空腔管线集成、隔音效果可靠、应用环境广泛的特点;墙板基材环保、饰面效果丰富、连接构造精密、企口拼装便捷;可以根据使用空间要求,进行不同的面层技术处理,实现各种质感和肌理的饰面效果。g8c筑傲网-装配式建筑专业网站平台

 g8c筑傲网-装配式建筑专业网站平台

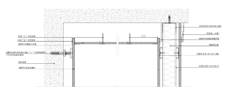
3、集成吊顶系统g8c筑傲网-装配式建筑专业网站平台

装配式吊顶可配套装配式墙面使用,操作简便,施工快捷。搭接自动调平、免吊挂易安装、便于管道维护、饰面效果多样(见下图);施工过程中无需现场裁切,无粉尘、无粉尘、无噪音、快速装配、不用预留检修口,适合用于厨房、卫生间、阳台以及其他开间较小的空间。具有拆装快速、打理轻松、翻新便捷等特点。噪音、快速装配、不用预留检修口,适合用于厨房、卫生间、阳台以及其他开间较小的空间。具有拆装快速、打理轻松、翻新便捷等特点。g8c筑傲网-装配式建筑专业网站平台

 g8c筑傲网-装配式建筑专业网站平台

4、集成卫浴系统g8c筑傲网-装配式建筑专业网站平台

由干式工法的防水防潮构造、排风换气构造、架空地面构造、干挂墙板构造、同层排水系统、吊顶构造以及陶瓷洁具、电器五金件构成(见下图)。整体防水底盘由工厂柔性生产,一次成型,立体反沿搭接,使卫生间地面形成一个封闭的整体,避免开裂、漏水等问题。柔性整体防水底盘对空间的适应性极强,可根据使用空间形状进行柔性定制,保证对使用空间的全方位覆盖,根据空间的形状、地漏位置、门槛等各部品位置进行一次成型定制。 g8c筑傲网-装配式建筑专业网站平台

 g8c筑傲网-装配式建筑专业网站平台

 

 g8c筑傲网-装配式建筑专业网站平台

5、集成厨房系统g8c筑傲网-装配式建筑专业网站平台

由地面、吊顶、墙面、橱柜、设备、五金及管线等通过设计集成、工厂生产、干式工法装配而成的厨房,与墙体连接部位预设柜体加固,强调厨房的集成性和功能性。集成厨房更突出空间节约、表面易于清洁,材料环保耐久。墙面无缝构造墙板颜色丰富耐油污、减少接缝易于维护打理。 g8c筑傲网-装配式建筑专业网站平台

装配化装修是实现全装修的最佳解决方案,是装修建造方式的深度变革,是传统建造行业向新型制造行业的重要转变。装配化装修饰面材料丰富、表达效果多样、施工周期短、品质及施工过程易管控、能有效减少原材料的资源浪费。装修成品零甲醛、零污染即装即住,部品拆卸方便、更换轻松。装配化装修维修率比传统装修低 80%,能够有效降低住宅全生命周期的成本。g8c筑傲网-装配式建筑专业网站平台


来顶一下
返回首页
返回首页
发表评论 共有条评论
用户名: 密码:
验证码: 匿名发表
推荐资讯
装配式建筑单位免费登记,第一时间分享装配式项目合作讯息!
装配式建筑单位免费登
装配式建筑招投标,你都清楚吗?
装配式建筑招投标,你
重庆市首个主体结构全装配钢筋混凝土建筑投用
重庆市首个主体结构全
石家庄一建筑方案印发 要求被动房开工建设至少35万平
石家庄一建筑方案印发
购买装配式必读书籍
栏目更新
栏目热门